
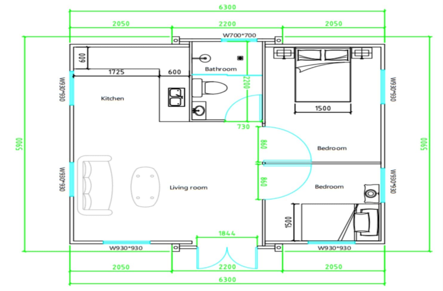
Σχέδιο με 2 κρεβατοκάμαρες :

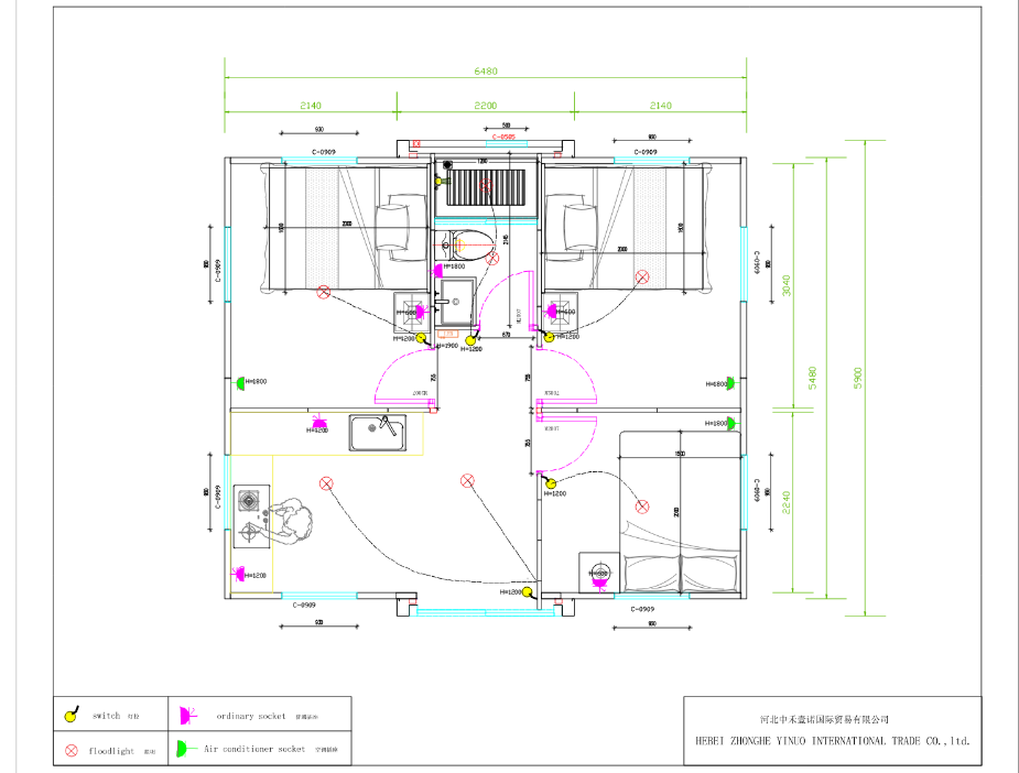
Σχέδιο με 3 κρεβατοκάμαρες :

Αντισεισμικός χαλύβδινος σκελετός για μέγιστη ασφάλεια, σταθερότητα και μακροχρόνια αντοχή
Θερμομόνωση πολυουρεθάνης έως 100 mm, εξασφαλίζοντας θερμική άνεση και ενεργειακή απόδοση όλο τον χρόνο
Εξωτερικά πάνελ αλουμινίου αεροπορικού τύπου με επίστρωση φθοριοάνθρακα για αυξημένη αντοχή σε καιρικές συνθήκες και διάβρωση
Διπλά θερμομονωτικά LOW-E υαλοστάσια με προστασία UV και ενσωματωμένες σίτες για φυσικό φωτισμό και άνεση
Σύγχρονη εσωτερική διακόσμηση, με διακοσμητικά πάνελ υψηλής αισθητικής και προσεγμένη εργονομία χώρων
Δάπεδα PVC υψηλής αντοχής, διαθέσιμα σε πλούσιο χρωματολόγιο αποχρώσεων (όψη ξύλου, πέτρας, γήινους και μοντέρνους τόνους), προσφέροντας ευκολία συντήρησης, ανθεκτικότητα και αισθητική αρμονία
Πλήρως εξοπλισμένο μπάνιο, με ολοκληρωμένη στεγανοποίηση, επώνυμο υδραυλικό εξοπλισμό και διαχωρισμό υγρής–ξηρής ζώνης
Ποιοτικά ηλεκτρολογικά και υδραυλικά συστήματα, σχεδιασμένα σύμφωνα με διεθνείς προδιαγραφές ασφαλείας
Έτοιμο προς άμεση χρήση, με έμφαση στη λειτουργικότητα, την άνεση και τον σύγχρονο σχεδιασμό




